賃料
1階(現況:賃貸中)
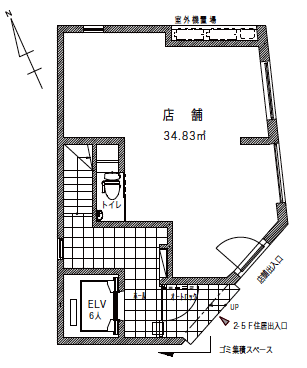
1階平面図

賃料
| 月額賃料 | 140,000 円 + 消費税 | |
初 期 費 用 |
仲介手数料 | 賃料の1か月分 + 消費税 |
| 保証金(敷金) | 賃料の4か月分 |
|
| 家賃保証料 | 賃料の1か月分(初回保証料) | |
| 火災保険料 | 金額は保険会社による |
|
| 前家賃 | 当月日割 + 翌月分 |
|
※ 賃貸契約にあたり連帯保証人は必要ありません。ただし、家賃保証会社による審査
があり、同社との契約が必要です。2年めからの年間保証料は賃料の15%です。
※ 借主による内装工事が必要です。退去の際は原状回復を原則とし、貸主は造作買取
いたしません。貸主の承諾を得て、第三者(新借主)へ造作を譲渡できます。
詳細
| 建物名 | プレイス北新宿 |
| 所在地 | 新宿区北新宿4丁目12-22 |
| 交通 | JR総武・中央各駅停車 東中野駅 徒歩10分 JR総武・中央各駅停車 大久保駅 徒歩10分 |
| 面積 | 34.83m2(壁芯面積) ※ 詳細は平面図をダウンロードしてご覧ください。 |
| 階建/階 | 5階建/1階 (2〜5階は住居) |
| 建物構造 | 鉄筋コンクリート |
| 接道 | 南 約8m 公道/東 約6m 公道 |
| 設備 | 電気・上下水道・都市ガス・フレッツ光回線 引込済み、トイレ工事済み |
| 契約期間 | 2年(普通建物賃貸借契約) |
| 更新費用 | 更新料は不要、仲介手数料は不要、火災保険料は初回と同等額 |
| 特記事項 | ※ 駐車場・駐輪場はありません。 ※ テレビアンテナはありません。フレッツテレビによりTV視聴できます。 〈入居条件〉 ・ 入居者どうし、近隣住民との良好な関係づくりに協力的であること ・ 出入口やゴミ収集スペースなど共用部分の美化に協力的であること |

